KYN61-40.5 21.6KV lülitusplaat, elektriline
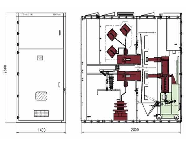
KYN61-40.5 tüüpi soomustatud eemaldatava vahelduvvooluga metallist suletud jaotusseadmete (edaspidi "jaotusseade") peamine omadus on see, et kapp on varustatud ZN85-40.5 ja VD4, VB2 täisisolatsiooniga vaakumiga. kaitselüliti ja vedru töömehhanism. Kapi korpus on valmistatud alumiinium-tsinkplaadist, mis parandab käsikäru ja kapi korpuse kinnitustäpsust. Vahetatavast käsikärust on väga mugav sisse ja välja libiseda. Välimus on ilus ja skeem on terviklik, mis on ohutu ja töökindel.Seda toodet kasutatakse 35kV kolmefaasilises vahelduvvoolu 50Hz elektrisüsteemis elektrijaamade, alajaamade ning tööstus- ja kaevandusettevõtete ruumide vahetamiseks voolu vastuvõtmiseks ja jaotamiseks. juhtimis-, kaitse- ja seirefunktsioonid.See toode vastab järgmistele nõuetele: GB3906"3-35kV vahelduvvoolu metallsuletud jaotusseade", GB/T11022"kõrgepinge lülitus- ja juhtimisseadmete standardi üldlevinud tehnilised nõuded", DL/T404 "tellimistehniline seade AC kõrgepinge lülituskapi tingimused", IEC298"Vahelduvvoolu metallsulguriga jaotus- ja juhtimisseadmed nimipingega 1kV üle 52kV ja alla" standarditele.
Kirjeldus
KYN61-40.5 21.6KV lülituskilp elektriline
KYN61-40.5-seeria Metallkattega väljatõmmatav vahelduvvoolu metallist suletud jaotuskapp on uut tüüpi toode, mille on hiljuti välja töötanud ja välja töötanud Xi'ani kõrgepinge elektriuuringute instituut. Jaotusseadme raam on metallkattega konstruktsiooniga, seest on varustatud uue täisisolatsiooniga vaakumkaitselüliti või väävelheksafluoriidi kaitselülitiga. Jaotusseadme korpus kasutab pakendatud struktuuri, mis parandab välimuse kvaliteeti ja valmistamise täpsust ning lühendab tootmistsüklit. Jaotusseadmete normaalne toimimine suletud uksega kõrgsurve isoleeritud ruumi tingimustes. Jaotusseadme kapp vastab standardi IEC-60298,GB3906 regulatsioonile, millel on heli "viie ennetamise" funktsioon.
1. Kõrge kaitseaste
2. Lihtne kaitselüliti vahetus
3. Hea käsikäru vahetatavus
4. Vähem kaetud ala
5. Kõrge turvalisus
6. Usaldusväärne blokeerimisseade, et vältida väärkasutust
KYN61-40.5 õhuisolatsiooniga metallkattega väljatõmmatav jaotusseade (edaspidi "jaotusseade") on vajalik siseruumides toitejaotusseade 40,5 kV 3-faasilises vahelduvvoolus 50 Hz. Seda kasutatakse peamiselt elektrienergia jaotamiseks kaevanduse, tööstuse ja elektritoitesüsteemi elektrijaamades ja alajaamades. Seda kasutatakse ka juhtimiseks, kaitseks ja jälgimiseks jne nii liiniahelate kui ka sageli töökohtade jaoks.
1. Ümbritseva õhu temperatuur: -10oC ~ pluss 40oC ja keskmise suhtelise õhuniiskuse mõõtmine 24 tunni jooksul Vähem kui 35oC või sellega võrdne;
2. Kõrgus: mitte üle 1000 m üle merepinna;
3. Ümbritsev õhuniiskus: päeva keskmine suhteline õhuniiskus 95 protsenti või sellega võrdne; Kuu keskmine RH Vähem kui 90 protsenti või sellega võrdne
4. Maavärina intensiivsus: 8. kraadist väiksem või sellega võrdne
5. Veeauru rõhk: päeva keskmine suhteline õhuniiskus 2,2 kPa või sellega võrdne; Kuu keskmine RH Vähem kui 1,8 kPa või sellega võrdne;
6. Ümbritsev keskkond: puudub tulekahju, plahvatusoht, tõsine reostus, keemiline korrosioon ja tugev vibratsioonikoht
Tehniline parameeter
Ei. | Üksused | Üksus | Parameetrid | ||
1 | Nimipinge | KV | 40.5 | ||
2 | Nimisagedus | Hz | 50 | ||
3 | Peasiini nimivool | A | 1250,1600,1200 | ||
4 | Haru siini nimivool | A | 630/1250/ 1600 | ||
5 | Nimetatud isolatsioonitase | Toitesageduse pingetaluvus 1 minutiga (efektiivne väärtus) | faas-faas, Faas-maandus | KV | 95 |
| KV | 115 | |||
Pikseimpulsi vastupidavuspinge (tippväärtus) | faas-faas, Faas-maandus | KV | 185 | ||
| KV | 215 | |||
Lisajuhtimisahela toitesageduse taluvuspinge | V | 2000 | |||
6 | Nominaalne lühise katkestusvool | KA | 25/31.5 | ||
7 | Nimi lühise sulgemisvool (tippväärtus) | KA | 63/80 | ||
8 | Nimetatud lühiajaline vastupidavusvool (4S) | KA | 25/31.5 | ||
9 | Nimetatud tipp-vastupidavusvool | KA | 63/80 | ||
10 | Abijuhtimisahela nimipinge | V | -110,-220,~220 | ||
11 | Kaitseaste | Korpus IP4X, IP2X Kui kaitselüliti uks avaneb | |||
12 | Kontuuri suurus (laius * sügavus * kõrgus) | mm | 1400(1200)*2800(2600)*2600(*sisaldab sisemist digitaalset SF6 käsikäru skeemi) | ||
13 | kaal | kg | ~2300 | ||






TEHAS

SERTIFIKAAT




NÄITUS

ETTEVÕTTE ÜLEVAADE

PAKKIMINE & KOHALETOIMETAMINE


KKK
Q5 : Kas OEM/ODM on saadaval?
V: Jah, on küll! Meie tooteid saab kohandada. Meil on projekteerimis- ja inseneride meeskonnad, saame kohandada tooteid vastavalt klientide joonistele või nõuetele.
Q6 : Kas olete tootja või kaubandusettevõte?
V: Oleme tehas, 20-aastase tootjakogemusega 100-protsendilise professionaalse tootjana saaksime toota tooteid vastavalt klientide nõudmistele ja samuti saaksime 100 protsenti kontrollida toodete kvaliteeti.
Q7 : Kas hinnas saab kaubelda?
V: Jah, hind on läbiräägitav. Seda saab muuta vastavalt teie kogusele või pakendile
Q8 : Kuidas oleks ülevaatusega?
V: Meil on kogu kontrollisüsteem alates toorainest kuni lõpptoodeteni, sealhulgas temperatuuri tõusu test, soolapihustustesti juhi tüübi test, mehaanilise eluea katse.
Q9 : Mis on maksetingimused?
V: TT, Paypal, Western Union, Alibaba kaubanduse tagamine ja L / C on vastuvõetavad. 30 protsenti T / T ette, 70 protsenti saldo enne saatmist.
VEEL VIDEOT
https://www.facebook.com/bob.niu.35/
Youtube
www.youtube.com/channel/UC5IP4dL0UTQG4fgAOa3UhWA
https://twitter.com/FengyuanE
Tere tulemast päringule
Kontaktinfo:
Jiyuan Fengyuan Electrical Equipment Co., Ltd
Müügiosakond
Kontaktisik: hr Charles Du
E-mail:fengyuan800@outlook.com
Mobiil: pluss 8618639199897(saadaval whatsapp, wechat, skype)
Lisa: Hulingi tööstustsoon, Jiyuancity, Henani provints, Hiina
TEL: pluss 86-0391-2180800
FAKS: pluss 86-0391-2180818
Kuum tags: kyn61-40.5 21.6kv elektrikilp, Hiina, tootjad, tarnijad, kohandatud












